Если цена в объявлении изменится, мы сразу сообщим вам об этом на электронную почту.
Нажимая «Подписаться», вы соглашаетесь с правилами.
продам универсальное помещение, Академпарк кп (Серпухов городской округ), 207 300 000 ₽
11 ноя
Дата публикации объявления
Обн. 11 ноя
Дата обновления объявления
165 909 ₽/м²
Параметры
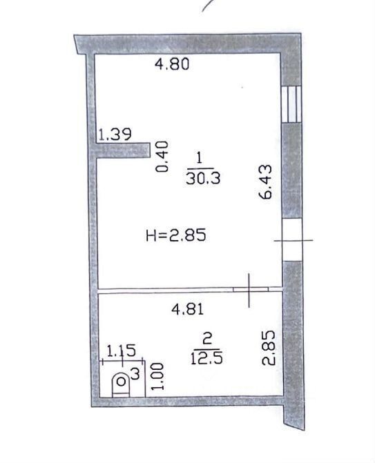
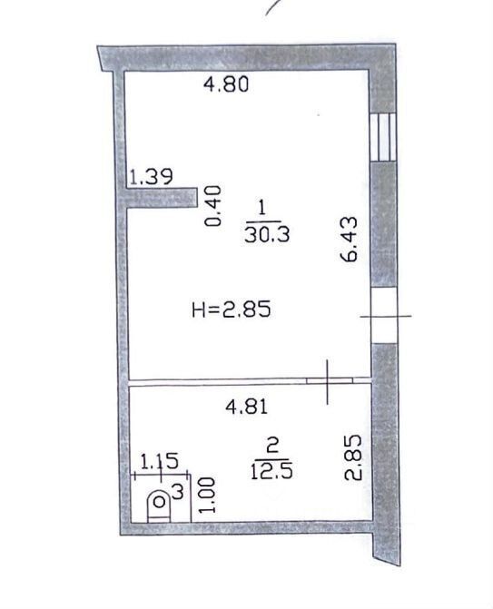
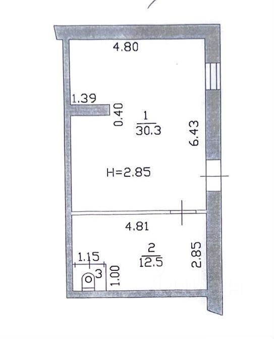
Общая площадь44 м2
Этаж1
Отдельный входесть
Продается помещение свободного назначения с отдельным входом. Находится в центре развитого района с высоким пешеходным трафиком. Помещение уже арендуется одним арендатором в течении 6 лет. Площадь 44 м2. Центральные коммуникации.